

Maison 5 pièce(s) 3 chambre(s) 109.22 m²
Nangis (77370)A propos de ce bien
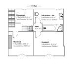
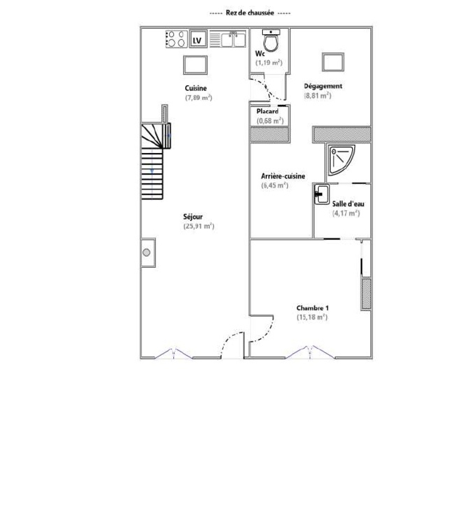
Caractéristiques de ce bien
- Surface 109,22 m²
- terrain 95 m²
- séjour 25,91 m²
- 3 chambre(s)
- 1 salle(s) de bain
- 1 salle(s) d'eau
- construit en 1900
- cuisine américaine (équipée)
- Chauffage central : chaudière (gaz de ville)
- Chauffage individuel : poêle (granules)
- exposition Nord
- 2 côté(s) mitoyen(s)
- 2 niveau(x)
- vue CENTRE VILLE
Diagnostics énergétiques
Montant estimé des dépenses annuelles d'énergie de ce logement pour un usage standard est compris entre 1 330 € et 1 850 € . 2023 étant l'année de référence des prix de l'énergie utilisés pour établir cette estimation.
Diagnostics énergétiques
Montant estimé des dépenses annuelles d'énergie de ce logement pour un usage standard est compris entre 1 330 € et 1 850 € . 2023 étant l'année de référence des prix de l'énergie utilisés pour établir cette estimation.